2024-12-24 13:36:47南通松江JB-QB-9101B型火災報警控制器接線安裝技術
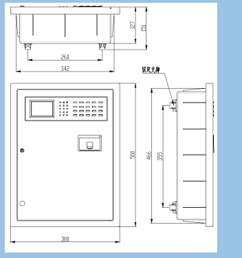
松江JB-QB-9101B 型火災報警控制器接線安裝技術1 概述:JB-QB-9101B 型火災報警控制器,是一款依據最新 消防規范設計開 發的新一代火災報警控制器產品,適用于民用建筑、小區樓房、辦公室、超 市、銀行、餐廳旅社、學校、文物保護單位、工廠車間、公眾文化娛樂場所 等普......
了解詳情上海松江飛繁電子有限公司
公司地址:常熟市黃河路275號
聯系電話:4006-598-119
公司郵箱:1334605518@qq.com

松江JB-QB-9101B 型火災報警控制器接線安裝技術1 概述:JB-QB-9101B 型火災報警控制器,是一款依據最新 消防規范設計開 發的新一代火災報警控制器產品,適用于民用建筑、小區樓房、辦公室、超 市、銀行、餐廳旅社、學校、文物保護單位、工廠車間、公眾文化娛樂場所 等普......
了解詳情
松江JB-QB-9101A 型火災報警控制器接線安裝技術1 概述:JB-QB-9101A 型火災報警控制器,是一款依據最新 消防規范設計開發的新一代火災報警控制器產品,適用于民用建筑、小區樓房、辦公室、超市、銀行、餐廳旅社、學校、文物保護單位、工廠車間、公眾文化娛樂場所等普通環境......
了解詳情
松江JB-9108DBA 火災報警控制器(聯動型)接線安裝技術一、系統概述:1.1 系統簡介:(1).JB-9108DBA 火災報警控制器(聯動型)是我公司最新開發的產品,具有系統容量適中,性能優化, 美觀大方,整機穩定性好等特點。用指示燈顯示屏的形式,來統一顯示控制器的各種系統......
了解詳情
松江JB-9108AG/JB-9108AT火災報警控制器(聯動型)接線安裝技術一、系統概述:1.1 系統簡介:(1).JB-9108AG/JB-9108AT 火災報警控制器(聯動型)是我公司最新開發的產品,具有系統容量大,性 能優化,美觀大方,整機穩定性好等特點。用指示燈顯示屏的......
了解詳情
松江JB-9102BA 火災報警控制器(聯動型)接線安裝技術一、系統概述:1.1 系統簡介: JB-9102BA 型火災報警控制器(聯動型)以下簡稱為控制器,是集火災報警和消防聯動于一體的火 災消防自動控制系統。在主 CPU 的統一協調和控制之下多個從 CPU 并行協同處理,各自......
了解詳情一、概述電氣火災是一種常見的火災類型,其發生原因眾多,例如絕緣體老化、接地 故障、電源短路等,都有隱患會導致電氣火災的出現。其中,電源短路是最為 主要的原因。根據相關統計,電氣火災占據火災總數的 30%左右,是所有火災類 型中的首位。因此,為了保障電氣設備的使用安全,電氣火災監控......
了解詳情
一、概述 電氣火災是一種常見的火災類型,其發生原因眾多,例如絕緣體老化、接地 故障、電源短路等,都有隱患會導致電氣火災的出現。其中,電源短路是最為 主要的原因。根據相關統計,電氣火災占據火災總數的 30%左右,是所有火災類 型中的首位。因此,為了保障電氣設備的使用安全,電氣火災監......
了解詳情
1、概述松江HJ-9702BA 消防設備電源狀態監控系統(以下簡稱監控系統)是我公司最新 研制開發,面向民用和工業雙重領域的新一代消防電源監控產品,具有高智能、小型化、多功能、高可靠性等特點。該監控系統是在跟蹤消防設備電源監測技 術的最新發展方向,并結合我公司多年來在工業領域及民......
了解詳情